合肥装饰公司>合肥装修公司>办公室装修>厂房装修>展厅装修>办公楼设计装修 > 知名客户 > 上市公司/知名私企 > 安徽皖新机电有限公司-厂房办公楼改造
项目类型:现代简约风办公室翻新改造项目 专业合肥办公室装修公司 合肥办公楼装修设计公司
项目设计:半山装饰办公空间设计部A组
项目面积:1000㎡
所在地:合肥市经济技术开发区
设计说明:
安徽皖新电机有限公司位于合肥市经济技术开发区卧云路以南、蓬莱路以东2151号,主要从事车用电动机的研发、制造、销售、技术服务及咨询;工业车辆及工程机械的零部件、机电产品的研发、制造、销售、服务。
该办公室翻新改造案例为客户生产厂房内二层管理办公室改造工程,面积1000平方。原二层办公室为彩钢瓦泡沫芯结构,达不到防火级要求,现全部拆除做石膏板隔墙。客户在比较了设计方案、价格,参观了我们公司以及施工工地之后,最终从三家公司中选择与半山装饰合作。主要还是看中我们多年来做工装的专业性,办公室旧貌换新颜,我们按质按量的完成了装修工程。客户对我们工作非常满意,后期的厂房大门改造,厂区地面做混凝土,活动房搭建。也交由我们设计与施工!
原始照片(大门)
墙面石材局部已经掉落门楼的氟碳漆墙面,已经斑驳,局部掉落

厂房大门效果图
新做的大门墙面用的是花岗岩黄金麻,左面标志为石材阳刻效果,右面标志为黑色拉丝不锈钢金属字。门楼外墙新做黄金麻色真石漆。

厂房大门效果图
新做的大门墙面用的是花岗岩黄金麻,左面标志为石材阳刻效果,右面标志为黑色拉丝不锈钢字。门楼外墙新做黄金麻色真石漆。

原始照片(楼梯)
原始楼梯是不锈钢扶手,楼梯钢板焊制,表面的油漆已经掉落,在行走的时候,楼梯有明显震感,会有轻微晃动

新做厂房楼梯
我们首先拆除了原有的不锈钢扶手,改用方管焊制,刷氟碳漆。对楼梯主体进行了加固处理,在转角增加支撑柱。楼梯踏面全部用石材铺贴。顶面采用石膏板吊顶,筒灯及灯带的使用,即增加了楼梯处采光,也增加了环境氛围。改造完之后的楼梯,行走在上面没有任何感,不晃动,很有安全感,石材的使用,提升了整个档次。

原始照片(过道)
墙体原为彩钢瓦泡沫芯结构过道扶手为不锈钢扶手

新做过道照片
新做石膏板隔墙,过道墙体采用高隔间双层玻璃加百叶地面为仿木纹的石塑地板过道扶手为方管焊制,刷氟碳漆。

原始照片(办公室)
墙体原为彩钢瓦泡沫芯结构框棉板吊顶已经局部变形,顶面方块灯的灯芯是灯管,不节能,还特别容易坏

新做办公室照片
新做石膏板隔墙,刷白色乳胶漆,过道墙体采用高隔间双层玻璃加百叶。吊顶为硅钙板集成吊顶,之前的灯具方块灯的灯芯是灯管特别容易坏,常常需要更换,客户也很是头疼,这一次我们把灯具全部更换为雷士的LED光片灯。既节能也增加了整体照明的亮度。会议室墙面局部使用吸音板饰面及磁吸白色烤漆玻璃,地面为仿木纹石塑地板

新做卫生间照片
整体浴室柜箭牌感应小便斗及座便器

整体照片对比

部分施工照片

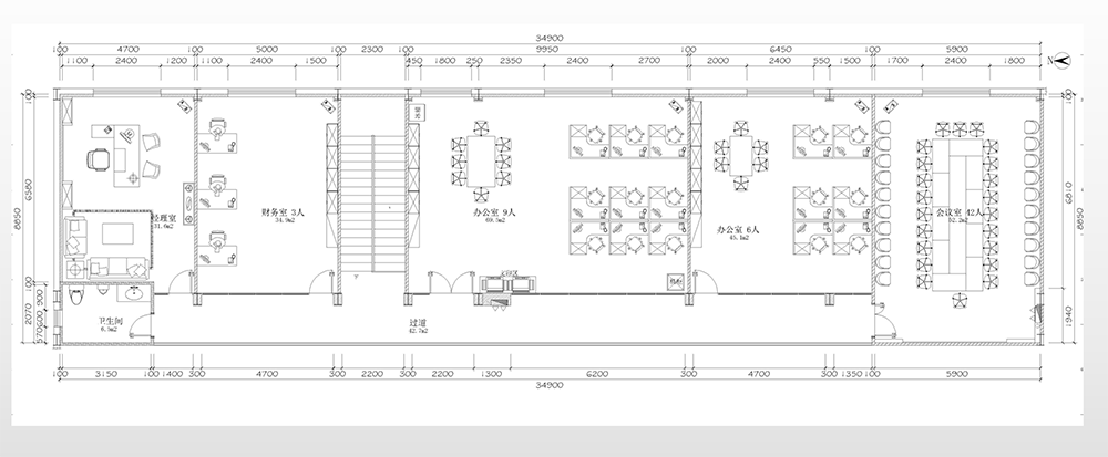
二层平面布置图
功能区:总经理室、财务室、员工办公室、会议室、卫生间、公共过道

安徽半山装饰工程有限公司是一家从事多年的室内设计装饰装修企业,具有总包叁级、装饰装修专项施工乙级以及工程设计专项资质,主要致力于办公室装修、写字楼装修、厂房装修、展厅装修、售楼部装修、样板间装修、民宿装修、店面店铺装修、学校装修、及其它商业空间装修设计施工一体化服务。咨询电话:18919604649