• 加微信沟通

  • 18919604649

合肥装饰公司>合肥装修公司>办公室装修>厂房装修>展厅装修>办公楼设计装修 > 精品案例 > 办公楼/办公室装修 > 办公楼装修 > 吴山健浩3000m²现代简约办公楼装修项目

算算装修要花多少钱?

  • *您的隐私将会严格保密,请放心填写!

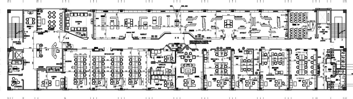
吴山健浩3000m²现代简约办公楼装修项目

发布时间:2021-08-04 17:30:29 浏览次数:

项目类型:现代简约风办公室装修设计    专业合肥办公室装修公司   合肥办公楼装修设计公司

项目设计:半山装饰办公空间设计部A组

项目面积:3000㎡

所在地:安徽·合肥

设计说明:

该案例为客户企业办公楼装修设计项目,主要用于企业办公、会议、接待及产品展示等功能,面积3000平方。一楼为接待大厅,墙、地面满贴大理石,二楼为办公空间和产品展示区。时尚简约配上工业风格,石膏板造型顶配上定制的造型等,营造出一种时尚又大气的办公空间。合肥装修公司

吴山健浩3000m²现代简约办公楼装修项目(图1)


吴山健浩3000m²现代简约办公楼装修项目(图2)


吴山健浩3000m²现代简约办公楼装修项目(图3)


吴山健浩3000m²现代简约办公楼装修项目(图4)

吴山健浩3000m²现代简约办公楼装修项目(图5)


吴山健浩3000m²现代简约办公楼装修项目(图6)


吴山健浩3000m²现代简约办公楼装修项目(图7)


       

安徽半山装饰工程有限公司是一家从事多年的室内设计装饰装修企业,具有总包叁级、装饰装修专项施工乙级以及工程设计专项资质,主要致力于办公室装修写字楼装修厂房装修展厅装修售楼部装修样板间装修民宿装修店面店铺装修学校装修、及其它商业空间装修设计施工一体化服务。咨询电话:18919604649

合肥装修公司     合肥工装公司


装修案例推荐